Выключатель АВМ 10НВ 750А: надежность и безопасность электрической системы
Выключатель АВМ 10НВ 750А представляет собой надежное и высококачественное устройство, предназначенное для защиты электрических цепей от перегрузки и короткого замыкания. Он оснащен множеством функций, которые обеспечивают безопасность и эффективность работы электрической системы.
Одной из главных особенностей выключателя АВМ 10НВ 750А является его высокая номинальная токовая характеристика – 750 ампер. Это позволяет использовать его для защиты сильнопотребляющих устройств или целых электрических сетей с высокой нагрузкой. Благодаря этому, выключатель обеспечивает безопасную и стабильную работу электрической системы, предотвращая перегрузку и короткое замыкание.
Выключатель АВМ 10НВ 750А также обладает и другими важными характеристиками, улучшающими его функциональность и надежность. В его конструкции присутствуют дополнительные контакты и механизмы, которые обеспечивают быстрое и надежное отключение электрической цепи в случае возникновения аварийных ситуаций. Это позволяет предотвратить возможные повреждения оборудования и обеспечить безопасность персонала.

Выключатель АВМ 10НВ 750А также отличается долговечностью и устойчивостью к внешним воздействиям. Его корпус выполнен из высококачественных материалов, которые обеспечивают защиту от перегрева и механических повреждений. Кроме того, выключатель имеет степень защиты IP20, что гарантирует его работу в различных условиях эксплуатации.
Технические характеристики
- Страна производитель – Россия;
- Производство – г. Челябинск, ООО Завод «Электроконтактор»;
- Ток номинальный – 750А;
- Напряжение – 500В;
- Полюсов количество – 3 полюса;
- Род тока – переменный;
- Исполнение – выдвижной;
- Расцепители – электромагнитный, тепловой;
- Привод – ручной;
- Селективность – неселективный;
- Категория размещения – У3;
- Частота – 50/60Гц;
- Предельная отключающая способность – 10кА;
Все эти характеристики делают выключатель АВМ 10НВ 750А идеальным выбором для использования в различных промышленных и коммерческих объектах. Он обеспечивает надежную защиту электрической системы и предотвращает возможные аварии и повреждения оборудования. Благодаря высокой номинальной токовой характеристике и дополнительным функциям, этот выключатель является оптимальным решением для обеспечения безопасности и эффективности работы электрических цепей.
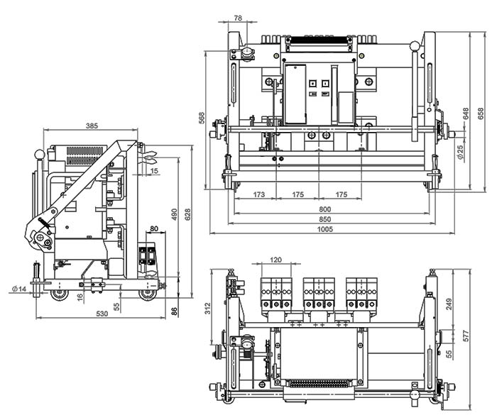
Габаритные размеры












