Щит ОЩВ служит для распределения и приёма электроэнергии в сетях трёхфазного переменного тока 220/380В и частотой 50/60Гц.
На щитке установлены автоматические выключатели. ОЩВ может аварийно разъединять электроцепи во время перегрузки или короткого замыкания. Может комплектоваться УЗО. Щиток ОЩВ может устанавливаться как в нишу - УОЩВ, так и крепиться на стене - ОЩВ. Комплектуются щитки ОЩВ автоматическими выключателями производства завода Электроконтактор.
Структура условного обозначения
ОЩВ - ХХ УХЛ4, ХХ / ХХ А, ХХ
1 2 3 4 5
1. Количество автоматических выключателей.
2. Климатическое исполнение (УХЛ) и категория размещения (4) по ГОСТ 15050-69.
3. Номинальный ток вводного автомата.
4. Номинальный ток автоматов в групповой цепи.
5. Степень защиты по ГОСТ 15150-69: IP31; IP54.
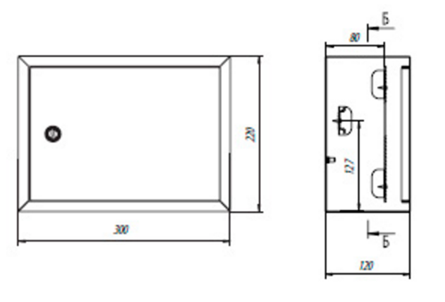
Габаритные размеры












