Щит ОЩВ служит для распределения и приёма электроэнергии в сетях трёхфазного переменного тока 220/380В и частотой 50/60Гц.
На щитке установлены автоматические выключатели. ОЩВ может аварийно разъединять электроцепи во время перегрузки или короткого замыкания. Может комплектоваться УЗО. Щиток ОЩВ может устанавливаться как в нишу - УОЩВ, так и крепиться на стене - ОЩВ. Комплектуются щитки ОЩВ автоматическими выключателями производства завода Электроконтактор.
Назначение
Предназначен для приема и распределения электроэнергии в жилых и производственных помещениях, а также для защиты линий от перегрузок и короткого замыкания в сетях напряжением 380/220В
Преимущества
- Применение только сертифицированных материалов.
- Сборка, как в металлических, так и в пластиковых боксах.
- Степень защиты IP 31.
- Изготовление, как стандартных изделий, так и по схемам заказчика.
Технические характеристики
| Нименование | Значение |
|
Исполнение щитка |
Навесной |
| Количество отходящих линий | 6 |
| Номинальный ток вводного автоматического выключателя | 63А |
| Номинальный ток линейных автоматических выключателей | 16А |
| Степень защиты | IP 31 |
| Климатическое исполнение по ГОСТ 15150-69 | УХЛ4 |
Схема ОЩВ- 6 (ВА4729 63А/6*16А)

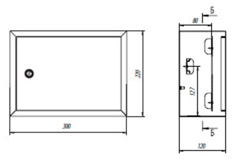
Габаритные размеры












