Щит ОЩВ служит для распределения и приёма электроэнергии в сетях трёхфазного переменного тока 220/380В и частотой 50/60Гц.
На щитке установлены автоматические выключатели. ОЩВ может аварийно разъединять электроцепи во время перегрузки или короткого замыкания. Может комплектоваться УЗО. Щиток ОЩВ может устанавливаться как в нишу - УОЩВ, так и крепиться на стене - ОЩВ. Комплектуются щитки ОЩВ автоматическими выключателями производства завода Электроконтактор.
Назначение
Предназначен для приема и распределения электроэнергии в жилых и производственных помещениях, а также для защиты линий от перегрузок и короткого замыкания в сетях напряжением 380/220В
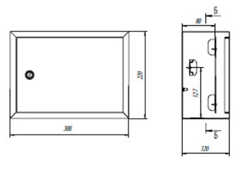
Габаритные размеры












