Щитки ОЩВ. Щитки предназначены для распределения электрической энергии, нечастых оперативных включений и отключений электрических цепей, и защиты от перегрузок и токов короткого замыкания осветительных сетей трехфазного переменного тока напряжением 380/220В частотой 50Гц. Щиток комплектуется автоматическими выключателями в зависимости от числа отходящих групповых линий.
Преимущества
- Применение только сертифицированных материалов.
- Сборка, как в металлических, так и в пластиковых боксах.
- Степень защиты IP 31.
- Изготовление, как стандартных изделий, так и по схемам заказчика.
Технические характеристики
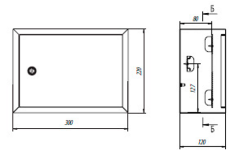
| Количество модулей | 12 |
| Номинальный ток щита | 100А |
| Номинальное напряжение | 400В |
| Климатическое исполнение | УХЛ 4 по ГОСТ 15150-69 |
| Степень защиты | IP31 по ГОСТ 14254-96 |
| Исполнение: | навесной |
| ТУ | З434-002-53793508-03 |
Габаритные размеры












