Расшифровка КВ1, маркировка
КВ 1-Х1Х2Х3
КВ -вакуумный контактор;
Х1- номинальный ток- 160А; 250А; 400А; 630А;
Х2 - число главных контактов: 2-2з; 3-3з
Х3 - Климатические исполнения- В3, У2, У5 и Т5 по ГОСТ 15150 и ГОСТ 15543.1.
Технические характеристики
• Класс – вакуумный контактор;
• Страна производитель – Россия;
• Полюсов силовых – 3 полюса;
• Ток номинальный – 250А;
• Напряжение номинальное – 1140В;
• Катушка управления – напряжение 220В;
• Катушка управления, род тока – постоянный/переменный;
• Производство – г. Челябинск, ООО Завод «Электроконтактор»;
• Исполнение товара – нереверсивный;
• Защита по IP – 00;
• НО контактов количество – 3;
• НЗ контактов количество – 0;
• Монтажа способ – плата монтажная;
• Ток – переменный;

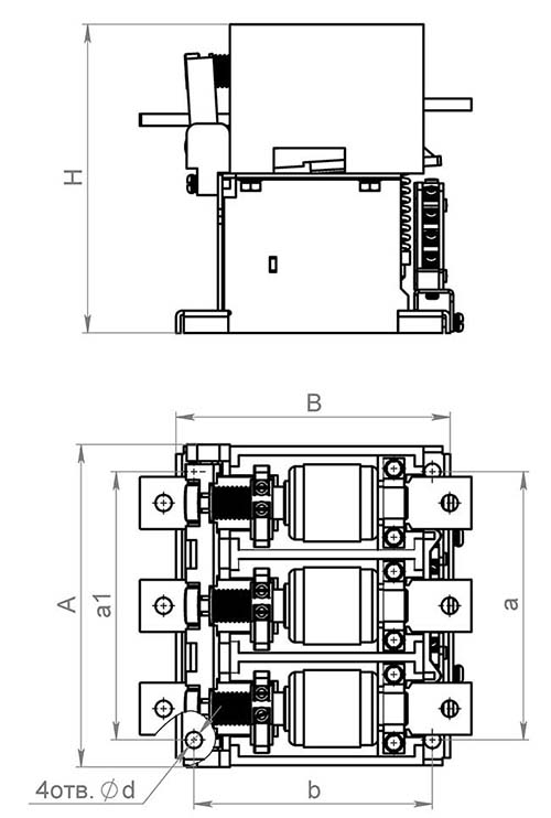
| Тип контактора | Н, мм | А, мм | В, мм | а, мм | а1, мм | b, мм | d, мм |
|
КВ 1-250-3В3 250А |
200 | 184 | 184 | 160 | 160 | 160 | 11 |










