КВ-1,14 5/500
Вакуумные контакторы КВ-1,14 5/500 предназначаются для эксплуатации в станциях управления, в пускателях, для коммутации токов отключения/включения асинхронных электрических двигателей и других приемников электрической энергии в системах удаленного управления электроприводами.
Область применения: железнодорожный и городской транспорт, металлургическая, горно-рудная, нефтегазовая и другие отрасли промышленности с тяжелыми режимами работы электроприводов.
Условное обозначение
КВТ-1,14 5/500
КВТ – трехполюсный вакуумный контактор;
1,14 – напряжение;
5 – ток отключения;
500 – рабочий ток;
Технические характеристики
• Отключения ток – 5 кА;
• Страна производитель – Россия;
• Напряжение номинальное – 380/660/1140В;
• Потребления мощность – 15Вт;
• Ток номинальный – 630/1000А;
• Износостойкость коммутационная – 300 000/500 000 циклов;
• Износостойкость механическая – 300000/500000 циклов;
• Отключения время – не дольше 0,16 с;
• Включения время – не дольше 0,08 с;
• Производство – г. Челябинск, ООО Завод «Электроконтактор»;
• Частота – 50/60Гц;
• Защита по IP – 00;

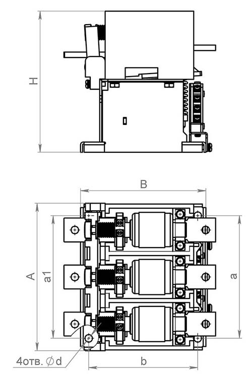
| Тип контактора | Н, мм | А, мм | В, мм | а, мм | а1, мм | b, мм | d, мм |
|
КВ-1,14 5/500 |
220 | 350 | 250 | 300 | 300 | 230 | 9 |










